Alquiler Villa exclusiva en el Desert de les Palmes – Benicàssim
Enclavada en un entorno natural incomparable, dentro del Parque Natural…
6.000€ /mes
Calle del Río Mijares, 6, Benicasim, Plana Alta, Castellón, Comunidad Valenciana, 12560, España
Venta
529.000€
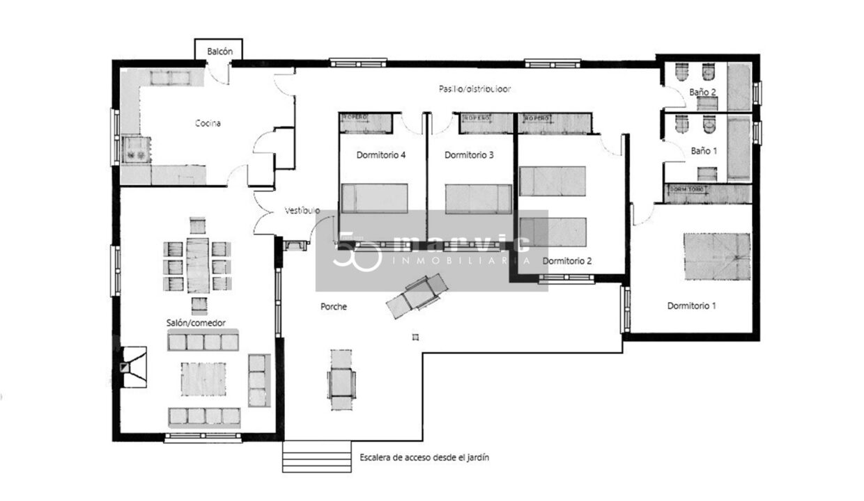
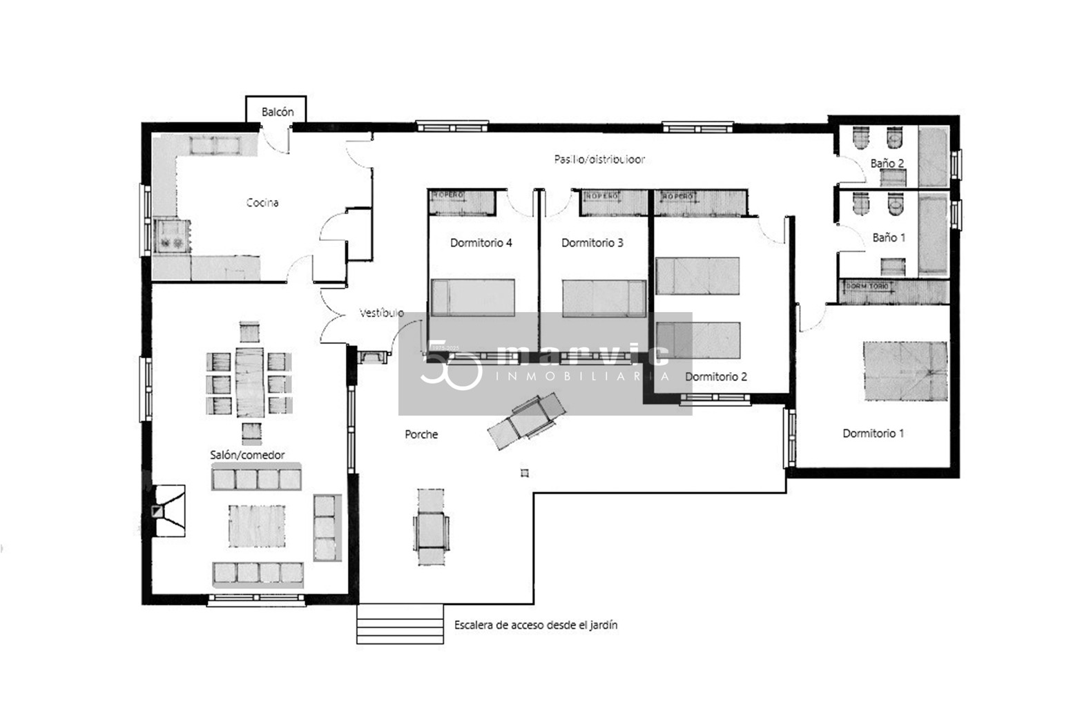
Inmobiliaria Marvic vende villa independiente en la zona de Heliópolis de 181 m2 construidos habitables en única planta (más otros 180 m2 en semisótano) con una terraza-porche de más de 35 m2, en una ESPECTACULAR PARCELA de 1008 m2 con amplias zonas ajardinadas con piscina.
La vivienda cuenta con un gran salón-comedor con chimenea (con 3 orientaciones: Sur, Este y Norte), cocina office con balcón, 4 habitaciones dobles con armarios empotrados y 1 baño, dando todas las estancias a exterior.
Además, dispone de un semisótano bajo toda la superficie que ocupa la vivienda, con diferentes estancias e incluso un gran cuarto de baño.
Aparte, cuenta con una magnífica zona de paellero/barbacoa con comedor de exterior y un cuarto de baño en la zona de la piscina, convirtiéndola en un lugar ideal para celebraciones en familia o con amigos, o simplemente disfrutar del relax y la tranquilidad cualquier día del año.
El estado de conservación de la vivienda, aunque la mayor parte de los acabados sean de origen, es bueno, habiendo realizado ligeras mejoras.
Situada en un agradable entorno residencial de construcción baja, se encuentra a tan solo 300 metros de la playa, disponiendo de diferentes servicios próximos. Aparte, tiene un muy cómodo acceso con vehículo, encontrándose a 7 minutos de Benicàssim Pueblo y a 9 minutos de la ciudad de Castellón.
Ideal para establecer tu residencia habitual o vacacional.
Conoce todas sus posibilidades.
Dispones de más información e imágenes en nuestra oficina MARVIC de Benicàssim, sita en Calle Santo Tomás 86.
Impuestos y gastos de mediación no incluidos.
Enclavada en un entorno natural incomparable, dentro del Parque Natural…
6.000€ /mes
Piso en venta en Calle Echegaray – Tu nuevo hogar…
300.000€